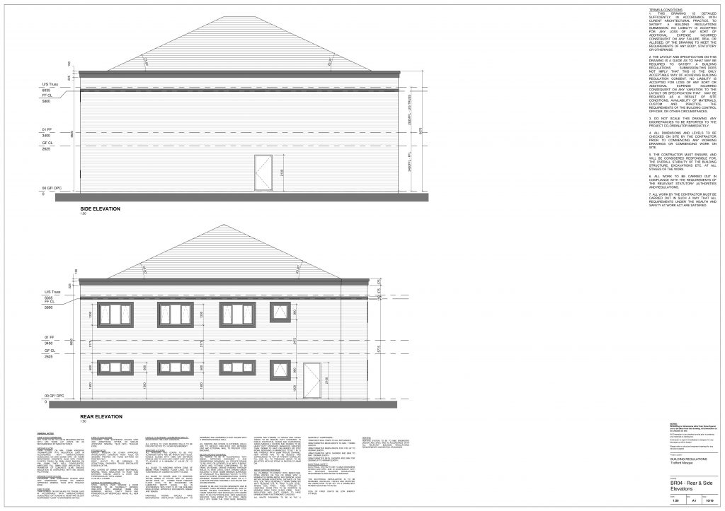
Street View
Aerial View
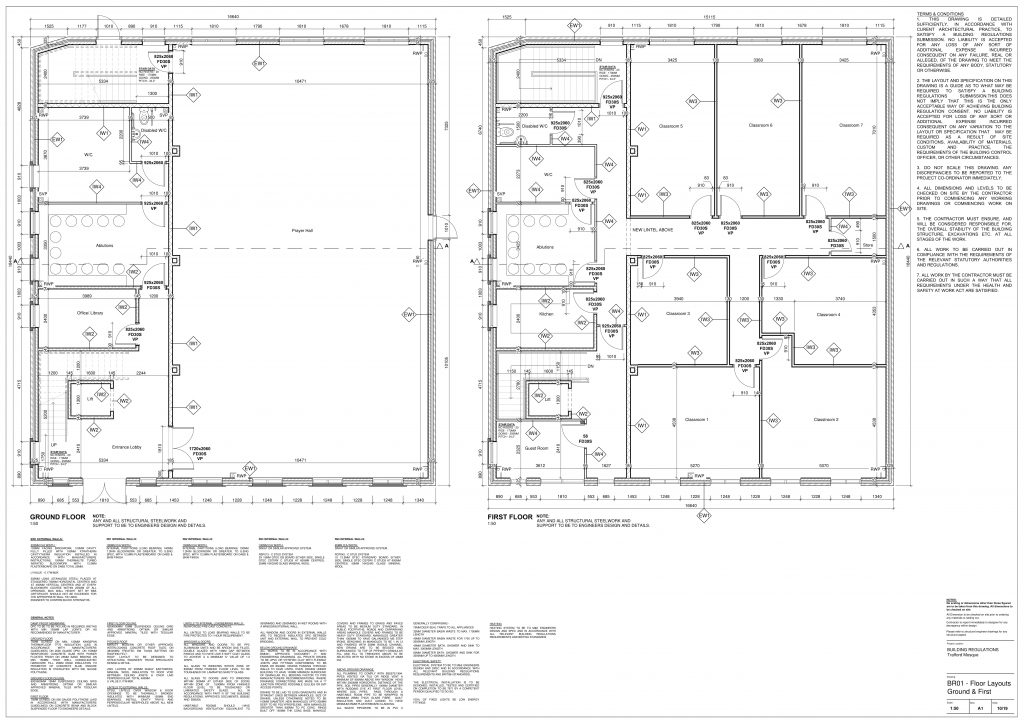
Ground Floor
First Floor
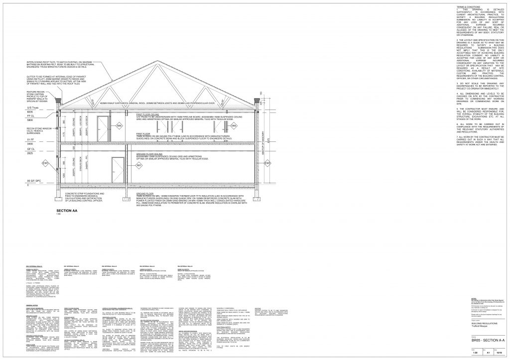
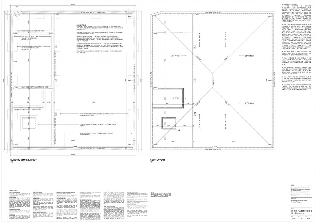
Roof
6 Classes
Principal & Aalim room
Toilet for boys
Toilet for girls
Amount in GBP
| Sl. No. | 1 Building and Accessories | Cost in Pound (£) |
| 1. | Building /Land Purchase and Legal Fees | £ 350,000 |
| 2. | Planning Application (Ref. H/59302) | £15,000 |
| 3. | Demolition of existing building | £25,000 |
| 4. | Site clearance and Enabling works | £50,000 |
| 5. | Substructure (Foundations and Drainage) | £150,000 |
| 6. | Structural Frame | £85,000 |
| 7. | Superstructure (Building Fabric) | £375,000 |
| 8. | Internal fit-out | £145,000 |
| 9. | Professional Fees | £35,000 |
| Total | £1,230,000 |

